Browse listings by city and community so you can focus on neighborhoods that match your lifestyle, budget, and commute.




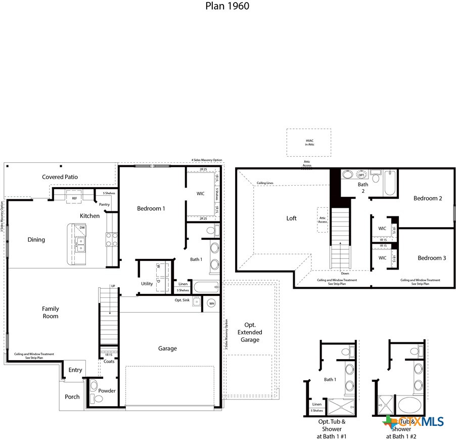
Come see our spacious Sterling floorplan in Killeen, Texas at Turnbo Ranch Traditions, with 3 bedrooms and 2.5 bathrooms. This carefully designed floorplan spans at an approximate 1,998 sq. ft. When you enter the home, you’ll be greeted by an open-concept first floor with a great room, dining area, and kitchen. The modern kitchen, with flat panel birch cabinetry, granite countertops, decorative tile backsplash, and stainless-steel appliances, is sure to please. Walking through the home, you can enter the 2-car garage near the laundry room. The first floor also offers access to the covered patio. The first floor features the primary bedroom that has an attached primary bathroom with a walk-in shower that has two different tub and shower options. The primary bedroom also offers a spacious walk-in closet for your belongings. Heading up the stairs to the second floor, you’re greeted by the loft. The loft not only leads to the two secondary bedrooms but also includes a secondary bathroom with a bathtub and shower combo. The secondary bedrooms have plenty of space for storage with the walk-in closet and cozy carpeting. Talk to us today to find out how you can make the Sterling your new home.
| 3 days ago | Listing first seen on site | |
| 3 days ago | Listing updated with changes from the MLS® |
Did you know? You can invite friends and family to your search. They can join your search, rate and discuss listings with you.